Today we have brought you a large 12-metre-long rv — the mercedes actros rv — that has so far been in the rv. Its price is 12. 8 million yuan. The space in the car is, for our usual rv, the villa level. It's so luxurious

The giant rv was built on mercedes benz aktos actros6 x 2 chassis with an exaggerated size of 180 x 2,500 x 3900 mm, known as the moving villa in the rv. It's luxurious, but not as big and swollen as our usual bus, but rather as well as so well-floated and fashionable



In addition to this vehicle, which is also highly technocratic, the vehicle uses a panoramic camera around the vehicle to reduce the driver's blind zone, with 22. 5 inches of prishto tires and abs in the wheel. There is also a 200l machine mailbox and storage suitcase in the back section. The overall design is very practical, and that's basically what it looks like




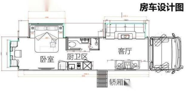
I really feel that poverty is limiting my imagination by coming to the interior of the car, and that's just the configuration of a villa. The layout of the living room and kitchen end bedroom is classic and practical. The colored feeling is very close to home. This is in addition to the kitchen system consisting of an electromagnetic furnace, a dishwasher, a refrigerator, a microwave and a coffee machine。


The bathroom is in the form of dry and wet separation, and the bathroom is operated in touch buttons. The massage spray is designed to wash away the weariness of the journey. It's a pleasure. I swear i'll be the driver of this rv later. There's an old chinese saying that the sparrows are small, but they're whole

It's not just a moving villa or a garage. There's a garage on the back! Oh, my god! When the vehicle enters, the garage slips out of a ramp to assist the vehicle to enter, and the normal b-c car can be parked in. It's very imaginative. You can do whatever you want


And let's look at the luxuriousness of the interior. There's all sorts of configurations, the whole cockpit and heavy trucks are designed in the same way. The difference is its luxuriousness. With a middle-controlled screen, i can't stand it. The floors are covered with wood, and i think it's worth $1 million

Finally, the design of the mercedes car actros, see which one of the great gods can fake it. On the power side, actors carries 12 l v6 turbine diesel engines with a maximum power of 360 horsepower and a maximum rectangular of 1850 calcium, with a moving system matching mercedes power shift g211-12 12 to a single-speed transformer. "go ahead and block 12 to block 2"




